DEV VERSION

Le Salengro

213 rue Roger Salengro, 69100 VILLEURBANNE

  • chambres 3 chambres disponibles  / 4
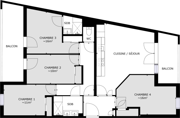
  • logement Logement de 90m²
  • Vélo'v / Bus 37 / Bus 69

Grand appartement moderne avec deux grands balcons dans une résidence avec jardin.
Quatre chambres meublées sont à votre disposition, décorées avec soin.
Profitez d'une cuisine suréquipée ouverte sur le salon, de deux salles de bains et d'un wc.
L'appartement est entièrement équipée et meublé, prêt à vous accueillir dans les meilleures conditions.

Plan des surfaces

Equipements Appartement

  • Jardin
  • Vaiselle Vaiselle
  • Lave-vaisselle Lave-vaisselle
  • Lave-linge Lave-linge
  • Aspirateur Aspirateur
  • Fer à repasser Fer à repasser
  • Sèche cheveux Sèche cheveux
  • Presse agrumes Presse agrumes
  • Grille Pain Grille Pain
  • Cookeo Multicuiseur Cookeo Multicuiseur
  • Gaufrier Gaufrier
  • Diffuseur Huiles Essentielles Diffuseur Huiles Essentielles
  • Déshumidificateur Déshumidificateur
  • Cafetière Cafetière
  • Bouilloire Bouilloire
  • Sodastream Sodastream
  • Set de jeux Set de jeux
  • Ensemble balais et seau Ensemble balais et seau
Voir tous les équipements Réduire les équipements

Services compris dans la location

Le propre tous les 15 jours, avec réassort de produits d’hygiène et d’entretien bio.

Les draps et serviettes sont fournis à votre arrivée.

Un pack d’alimentation bio vous est offert tous les 15 jours.

Des produits d’entretien et d’hygiène vous sont fournis gracieusement.

Colivers

Visite virtuelle

Toutes les chambres

Retrouvez les chambres que nous proposons

Chambre 1

Chambre se composant d'un lit double avec draps et oreillers, d’un bureau avec chaise, placard penderie avec serrure privative

Equipements Chambre

  • Lit double Lit double
  • Bureau Bureau
  • Rangements Rangements
  • Literie et accessoires Literie et accessoires
  • Mobilier Mobilier

430€ / mois*

Charges +95€

Inclus dans les charges

eau, électricité, gaz, internet, assurance habitation, coach sportif, pilate, yoga

Réserver ma chambre Chat Whatsapp

Chambre 2

Chambre avec balcon, se composant d'un lit double avec draps et oreillers, d’un bureau avec chaise, placard penderie avec serrure privative

Equipements Chambre

  • Lit double Lit double
  • Bureau Bureau
  • Rangements Rangements
  • Literie et accessoires Literie et accessoires
  • Mobilier Mobilier

440€ / mois*

Charges +95€

Inclus dans les charges

eau, électricité, gaz, internet, assurance habitation, coach sportif, pilate, yoga

Réserver ma chambre Chat Whatsapp

Chambre 3

Chambre avec salle de bains et balcon, se composant d'un lit double, avec un bureau, des rangements, literie complète et serrure privative.

Equipements Chambre

  • Salle de bain privée
  • Lit double Lit double
  • Bureau Bureau
  • Rangements Rangements
  • Literie et accessoires Literie et accessoires
  • Mobilier Mobilier

505€ / mois*

Charges +95€

Inclus dans les charges

eau, électricité, gaz, internet, assurance habitation, coach sportif, pilate, yoga

Liste d’attente Chat Whatsapp

Chambre 4

Chambre, se composant d'un lit double, avec un bureau, des rangements, literie complète et serrure privative.

Equipements Chambre

  • Lit double Lit double
  • Bureau Bureau
  • Rangements Rangements
  • Literie et accessoires Literie et accessoires
  • Mobilier Mobilier

440€ / mois*

Charges +95€

Inclus dans les charges

eau, électricité, gaz, internet, assurance habitation, coach sportif, pilate, yoga

Réserver ma chambre Chat Whatsapp

Emplacement

213 rue Roger Salengro, 69100 VILLEURBANNE

Parfaitement placé pour les étudiants du campus de la Doua, le parc de la Feyssine est tout proche, et le réseau des pistes cyclable est dense, vous pourrez aller faire du vélo au Parc de la Tête d'or ou emprunter la ViaRhona qui traverse la commune depuis le Parc de la Feyssine jusqu'à Saint-Jean, en direction du Parc de Miribel-Jonage. Vous aurez tous les avantages d'une grande ville dans une petite ville.

FAQ Foire aux questions

Lire la FAQ
Loading…
Loading the web debug toolbar…
Attempt #