DEV VERSION

La maison de Strasbourg

28 route de Strasbourg, 69300 Caluire et Cuire

  • chambres 6 chambres disponibles  / 6
  • logement Logement de 275m²

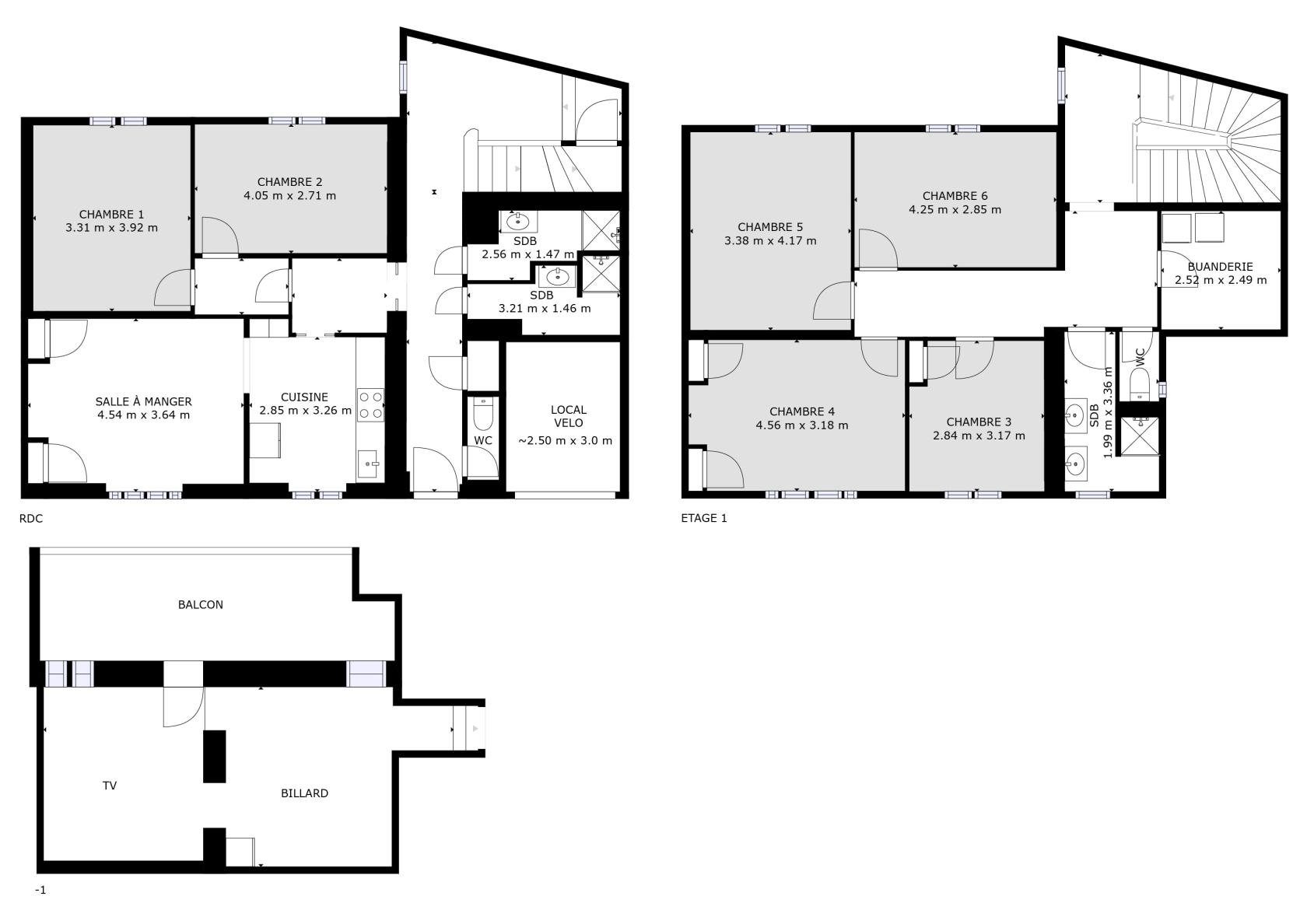
Grande maison de ville récemment refaite sur Caluire le bas, en face du campus de la Doua. La maison s'étale sur 275m² et est répartie sur 3 étages comprenant : 6 chambres, une salle de jeux au sous-sol, 3 salles de bains, deux WC indépendants, une cuisine, et un balcon à l'arrière.

Plan des surfaces

Equipements Appartement

  • Jardin
  • Vaiselle Vaiselle
  • Lave-vaisselle Lave-vaisselle
  • Lave-linge Lave-linge
  • Télévision Télévision
  • Canapé Canapé
  • Fauteuil Fauteuil
  • Aspirateur Aspirateur
  • Fer à repasser Fer à repasser
  • Sèche cheveux Sèche cheveux
  • Presse agrumes Presse agrumes
  • Grille Pain Grille Pain
  • Cookeo Multicuiseur Cookeo Multicuiseur
  • Gaufrier Gaufrier
  • Diffuseur Huiles Essentielles Diffuseur Huiles Essentielles
  • Déshumidificateur Déshumidificateur
  • Cafetière Cafetière
  • Bouilloire Bouilloire
  • Sodastream Sodastream
  • Set de jeux Set de jeux
  • Ensemble balais et seau Ensemble balais et seau
  • Rangements Rangements
  • Literie et accessoires Literie et accessoires
  • Mobilier Mobilier
Voir tous les équipements Réduire les équipements

Services compris dans la location

Le propre tous les 15 jours, avec réassort de produits d’hygiène et d’entretien bio.

Les draps et serviettes sont fournis à votre arrivée.

Un pack d’alimentation bio vous est offert tous les 15 jours.

Des produits d’entretien et d’hygiène vous sont fournis gracieusement.

Visite virtuelle

Toutes les chambres

Retrouvez les chambres que nous proposons

Chambre 1

Chambre se composant d'un lit double avec draps et oreillers, d’un bureau avec chaise, placard penderie et serrure privative

Equipements Chambre

  • Lit double Lit double
  • Bureau Bureau
  • Rangements Rangements
  • Literie et accessoires Literie et accessoires
  • Mobilier Mobilier

580€ / mois*

Charges +95€

Inclus dans les charges

eau, électricité, gaz, internet, assurance habitation, coach sportif, pilate, yoga

Réserver ma chambre Chat Whatsapp

Chambre 2

Chambre se composant d'un lit double avec draps et oreillers, d’un bureau avec chaise, placard penderie et serrure privative

Equipements Chambre

  • Lit double Lit double
  • Bureau Bureau
  • Rangements Rangements
  • Literie et accessoires Literie et accessoires
  • Mobilier Mobilier

580€ / mois*

Charges +95€

Inclus dans les charges

eau, électricité, gaz, internet, assurance habitation, coach sportif, pilate, yoga

Réserver ma chambre Chat Whatsapp

Chambre 3

Chambre se composant d'un lit double avec draps et oreillers, d’un bureau avec chaise, placard penderie et serrure privative

Equipements Chambre

  • Lit double Lit double
  • Bureau Bureau
  • Rangements Rangements
  • Literie et accessoires Literie et accessoires
  • Mobilier Mobilier

580€ / mois*

Charges +95€

Inclus dans les charges

eau, électricité, gaz, internet, assurance habitation, coach sportif, pilate, yoga

Réserver ma chambre Chat Whatsapp

Chambre 4

Chambre se composant d'un lit double avec draps et oreillers, d’un bureau avec chaise, placard penderie et serrure privative

Equipements Chambre

  • Lit double Lit double
  • Bureau Bureau
  • Rangements Rangements
  • Literie et accessoires Literie et accessoires
  • Mobilier Mobilier

580€ / mois*

Charges +95€

Inclus dans les charges

eau, électricité, gaz, internet, assurance habitation, coach sportif, pilate, yoga

Réserver ma chambre Chat Whatsapp

Chambre 5

Chambre se composant d'un lit double avec draps et oreillers, d’un bureau avec chaise, placard penderie et serrure privative

Equipements Chambre

  • Lit double Lit double
  • Bureau Bureau
  • Rangements Rangements
  • Literie et accessoires Literie et accessoires
  • Mobilier Mobilier

580€ / mois*

Charges +95€

Inclus dans les charges

eau, électricité, gaz, internet, assurance habitation, coach sportif, pilate, yoga

Réserver ma chambre Chat Whatsapp

Chambre 6

Chambre se composant d'un lit double avec draps et oreillers, d’un bureau avec chaise, placard penderie et serrure privative

Equipements Chambre

  • Lit double Lit double
  • Bureau Bureau
  • Rangements Rangements
  • Literie et accessoires Literie et accessoires
  • Mobilier Mobilier

580€ / mois*

Charges +95€

Inclus dans les charges

eau, électricité, gaz, internet, assurance habitation, coach sportif, pilate, yoga

Réserver ma chambre Chat Whatsapp

Emplacement

28 route de Strasbourg, 69300 Caluire et Cuire

Le quartier de Saint Clair est réputé pour son coté résidentiel, et le cours Aristide Briand offre une vue imprenable sur le Rhône. Le parc de la Tête d'Or, ainsi que le parc de la Feyssine sont situés à proximité et offrent des balades relaxantes au contact de la nature, tout comme le parc de la Feyssine. La place Bellevue est également située à deux pas, et abrite plusieurs commerces alimentaires, restaurants et bars.
Bus C5, arrêt Vassieux

FAQ Foire aux questions

Lire la FAQ
Loading…
Loading the web debug toolbar…
Attempt #